Vlietberg 6-04
VERKOCHT
Appartement Vlietberg 6-04 Charmant Appartement op de eerste verdieping
Gelegen op de unieke locatie van de Vlietberg bij Nijmegen, wordt dit charmante appartement (appartementsrecht 5) aangeboden. Dit appartement biedt niet alleen wooncomfort van circa 46 m², een aparte slaapkamer en een praktische indeling. Dit appartement is een aantrekkelijke kans voor wie compact en rustig wil wonen in de Ooijpolder, op korte afstand van het centrum van Nijmegen.
Daarnaast bent u mede-eigenaar van een natuurtuin van ruim 2700 m². Deze woning maakt deel uit van VvE Vlietberg 6 en biedt een bijzondere combinatie van rust, natuur en bereikbaarheid: wonen in de groene Ooijpolder met uitzicht over de Oude Waal, en toch op slechts enkele minuten fietsen van het centrum van Nijmegen en de Waalkade. Hier grazen de Konikpaarden en robuuste Schotse Galloways die het landschap open en levendig houden. Vanuit uw appartement wandelt of fietst u zo de uiterwaarden in, waar elk seizoen een ander uitzicht biedt.
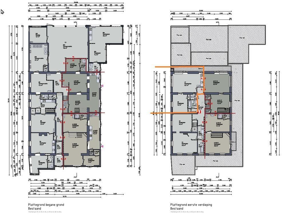
Woning en Indeling
Het appartement heeft een woonoppervlak van circa 46 m² en beschikt over een woonkamer met keuken, een slaapkamer en een badkamer. Dankzij de efficiënte indeling is dit appartement geschikt voor starters, alleenstaanden of als pied-à-terre.
De VvE biedt parkeergelegenheid op het terrein.
Natuurtuin
Een bijzonder voordeel van dit appartement is het mede-eigendom van een indrukwekkende natuurtuin van circa 2.700 m² achter de woning. Deze gezamenlijke tuin versterkt het gevoel van wonen in het groen en biedt volop mogelijkheden om te genieten van de natuur. Een groene oase die direct aansluit op het omliggende landschap.
Verhuur en levering
Het appartement is momenteel verhuurd tot en met 7 februari 2026. Levering kan vrij van huur plaatsvinden vanaf die datum, of desgewenst eerder in verhuurde staat (met huurinkomsten tot einde huurperiode).
Leefomgeving
De Vlietberg combineert de rust en schoonheid van de Ooijpolder met de nabijheid van de stad Nijmegen. Vanaf de woning wandelt of fietst u direct de uiterwaarden in. Voorzieningen zoals sportvelden, basisschool en supermarkt liggen binnen 10 minuten afstand. Het centrum van Nijmegen en de Waalkade liggen op minder dan 10 minuten fietsafstand. Station Lent is circa 15 minuten fietsen en de uitvalswegen zijn eenvoudig bereikbaar.
Kerngegevens
- Type aanbod: appartement (appartementsrecht 5)
- Locatie: Vlietberg 6-04, 6576 JB Ooij
- Woonoppervlak: ca. 46 m²
- Mede-eigendom natuurtuin: ca. 2.700 m²
- Perceeloppervlakte VvE: ca. 2.093 m²
- Vraagprijs:€ 223.000 k.k. (verkocht € 285,000,-)
- Vraagprijs per m²: ca. € 4.848
- Status: beschikbaar
- Aanvaarding: in overleg (vrij van huur vanaf 7 februari 2026, of eerder in verhuurde staat).
- Bouwjaar: 1875, volledig gerenoveerd in 2002
Procedure en Contact
Wij verstrekken u graag meer informatie over dit appartement, de VvE en de bijbehorende stukken (splitsingsakte, tekeningen, kadastrale kaarten). Serieuze kandidaten nodigen wij uit contact op te nemen voor een toelichting en een bezichtiging.
E-mail verkoop@vlietbergbeheer.nl
Telefoon 024-6690386
Klik hier voor de volledige disclaimer
Disclaimer
Alle informatie op deze website is met zorg samengesteld. Toch kunnen aan teksten, maatvoeringen, plattegronden, tekeningen, impressies, kenmerken, prijzen en beschikbaarheid geen rechten worden ontleend. Wijzigingen en typefouten voorbehouden.
Oppervlakten en inhoudsmaten zijn indicatief en kunnen afwijken van de werkelijkheid en/of NEN-normen. Plattegronden zijn niet altijd op schaal en dienen als sfeerimpressie.
Belangstellenden dienen zelfstandig onderzoek te doen naar voor hen relevante aspecten, zoals bouwkundige staat, onderhoud, bestemming, vergunningen, VvE-informatie, lasten en beperkingen.
Prijzen zijn onder voorbehoud en exclusief bijkomende kosten (zoals k.k. en overdrachtsbelasting), tenzij anders vermeld. Beschikbaarheid kan zonder voorafgaande aankondiging wijzigen.
Vlietberg Beheer sluit, voor zover wettelijk toegestaan, aansprakelijkheid uit voor schade die voortvloeit uit onjuistheden of onvolledigheden in de aangeboden informatie.



















